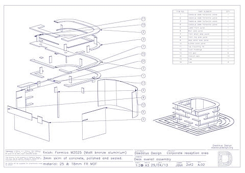
Manufacturing
Daedalus can help manage:
Prototyping
Site surveying
Sourcing
Install supervision
Snagging
HOME
CONCEPT
VISUALISATION
DEVELOPMENT